Wärmepumpe & Hybridsysteme
Finde Tipps, Austausch und Lösungen rund um Wärmepumpen und Hybridsysteme in der Viessmann Climate Solutions Community. Stell deine Fragen und diskutiere mit!
abbrechen
Suchergebnisse werden angezeigt für 
Anzeigen  nur  | Stattdessen suchen nach 
Meintest du: 

Foren Aktivität

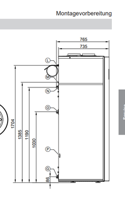
Fundament / Sockel / Vitocal 250 A

Hallo zusammen,ich erstelle gerade streifenfundamente für meine Vitocal 250 A (mit dämpfungssockel). Laut Vorgaben von viessmann sollen die beiden fundamentstreifen 435mm Abstand haben. Siehe in den Installationsvorgaben s. 138.nun werden dort auch 7...

von
  • 0 Likes
  • 5 Antworten
  • 1425 Ansichten

ViCare

ViCare hat zuerst ein Update angezeigt und lässt sich seitdem nicht mehr starten. Kann man das Update rückgängig machen ?

von
  • 0 Likes
  • 2 Antworten
  • 391 Ansichten

Erhöhte Trinkwasserhygiene Vitocal 060-A

Kann mir jemand einen Rat geben, wie oft ich das Hygiene-Programm (Aufheizung des WW auf 62 Grad) laufen lassen soll ? Es ist bei der Vitocal 060-A mit 178 Liter im Intervall von 1 - 30 Tagen einstellbar. Die tägliche Warmwasserentnahme ist relativ g...

  • 0 Likes
  • 8 Antworten
  • 1376 Ansichten

Vitocal 300-G Sekundärpumpe im Dauerbetrieb

Hallo Liebe Community, ich habe folgendes Problem: bei meiner Anlage läuft die Sekundärpumpe dauerhaft auf 100% Leistung.Das stört mich, weil hier unnötig viel elektrische Energie verbraucht wird. Verbaut ist: -VITOCAL 300-G-- Version WRP_4512-- Codi...

  • 1 Likes
  • 21 Antworten
  • 3919 Ansichten

Divicon M3 DN25 Plus-Bus Wilo Para

Hallo, Ich möchte meine alte Viessmann Wärmepumpe und Warmwasserspeicher durch neue 6 KW Wärmepumpe (Vitocal 200-S Typ: AWB-M-E-AC 201.E06 NEV) und 200 Liter Warmwasserspeicher (Vitocell 100-V, Typ CVWC) ohne Pufferspeicher ersetzen.Ich habe nur Fußb...

  • 0 Likes
  • 2 Antworten
  • 972 Ansichten

Programmierzeiten Zirkulation funktionieren nicht

Bei meiner Vitocal 222-S kann ich zwar die Zeiten für die Zirkulationprogrammieren, das Programm funktioniert aber nicht. Die Einschaltzeiten der Zirkulationspumpe haben nichts mit den programmierten Zeiten zu tun. Die Zirkulation soll nachts ausgesc...

  • 0 Likes
  • 10 Antworten
  • 1311 Ansichten

Vitocal 222-S heizt nicht mehr

Moin liebe Gemeinde,ich habe folgendes Problem :am 01.06.2024 ist mir aufgefallen, dass bei meiner Vitocal 222-S das Bedienelement und auch die LED aus waren. Stromausfall oÄ vor dieser Feststellung ist mir nicht bekannt.Dann den Notdienst gerufen, d...

  • 0 Likes
  • 22 Antworten
  • 2289 Ansichten

Lerne in 60 Minuten alles, was du über Wärmepumpen wissen möchtest. Jetzt an kostenlosen Viessmann Classrooms teilnehmen.

Zu diesen 4 Themengebiete rund um Wärmepumpen-Systeme kannst du dein Wissen vertiefen: Angefangen bei der Modernisierung mit einer Wärmepumpe, über die Kombination mit PV, Speicher und Wallbox sowie smarte Services bis hin zur aktuellen Fördersituati...

1800_1500_Beitrag als Teaser_Classroom.png

Problem mit Fancoils - Vitocal 200-s

Hallo!Ich habe folgendes Problem:Wir haben eine Vitocall 200-s mit 2 Fancoils, die jedoch nicht richtig funktionieren.Manchmal funktionieren die Fancoils, jedoch meistens nicht. Ich denke, es ist irgendwas falsch an der Wärmepumpe eingestellt.Kann ma...

Vitocal 220 S Fehler0A - Ausseneinheit kein Strom

Hallo zusammen, habe Fehlermeldung immer wiederkehrend 0A (15 oder 17 oder 19 mit 1/255)Außeneinheit bekommt keinen Strom, sichtbare Sicherungen an der Inneneinheit geprüft und ok.FI auch drin. Geht nur noch Wasser bis so 30 grad mit Tauchsieder 🙂SN...

von
  • 0 Likes
  • 7 Antworten
  • 1093 Ansichten

Vitocal 200-S Warmwassererwärmung Temp.2

Hallo, welche Parameter müssen in meiner Vitocal 200-S eingestellt werden damit ich eine Warmwassererwärmung auf 60°C erreichen kann? Ziel ist es, über manuelle Anforderung durch ViCare "Ich möchte Warmwasser" ein einmaliges aufheizen des Warmwasser ...

Natural Cooling Vitocal 200-G nachrüsten

Hallo zusammen,wir bekommen für unsere bereits eingebauten Erdkollektoren eine Heizungsanlage (Vitocal 200-G plus Pufferspeicher). Jetzt stellt sich die Frage, ob wir die Natural Cooling Box gleich mitinstallieren lassen. Laut Website ist dieses ja w...

Keine Anzeige von Stromverbrauch für Kühlung

Guten Tag, ich bin Besitzer einer Vitocal 200-G Wärmepumpe mit Natural Cooling. In der ViCare-App kann ich unter der Kachel „Stromverbrauch“ anzeigen lassen, wofür dieser verbraucht wurde (Warmwasser, heizen, kühlen). Bei „Kühlen“ wird bei mir allerd...

Natural Cooling

Liebe Nutzer,ich habe eine Vitocal 300 G Sole Wärmepumpe eingebaut 2010.Ich habe bezüglich Natural Cooling folgende Frage:Läuft im Kühlbetrieb die Solepumpe des Primärkreislaufs (Solekreislauf), oder läuft da nur die Pumpe der NC Einheit?? Danke im V...

Vitocal 262-A, Typ T2W

Ich möchte mir eine Vitocal 262-A, Typ T2W kaufen, um im Sommer die Gasheizung, die auch das Brauchwasser erwärmt, abschalten bzw. runterfahren zu können, da ich aber keine Photovoltaik-Anlage habe und auch keine installieren will, stellt sich die Fr...

Vitocal 250a Standort Außeneinheit nahe Gebäudeecke

Hallo zusammen, in den Viessmann Empfehlungen zu Aufstellung/Positionierung der Außeneinheit findet man u.a. den Hinweis, dass die Außeneinheit mit min. 1 Meter Entfernung zu Gebäudeaußenecken aufgestellt werden soll. Dies ist wohl um ungünstige Wind...

von
  • 0 Likes
  • 17 Antworten
  • 3232 Ansichten

Vitocal 300 macht kein warmwasser an warmen tagen

Hallo, Seit es etwas wärmer ist, will unsere Wärmepumpe tagsüber kein Warmwasser produzieren. Damit duschen die Kids an warmen Tagen abends kalt. Und nachts wird dann Netztstrom gezogen um mit der kalten Nachtluft warmwasser zu produzieren. Klingt ir...

von
  • 0 Likes
  • 1 Antworten
  • 394 Ansichten

Stromanschluss Vitocal 250-AH 10kW 400V

Hallo,ich will mir eine Hybrid Wärmepumpe Vitocal 250-AH, 10kW, 400V einbauen lassen und muß den Stromanschluss im Vorfeld schon legen.Mein Energieversorger schaltet den Wärmepumpenstrom 2x am Tag für 1,5 Stunden per Schaltuhr und Schütz hart ab.Was ...

von
  • 0 Likes
  • 5 Antworten
  • 934 Ansichten

Vitocal 222-S Takten bei aktiver Kühlung

Hallo zusammen, ich versuche die letzten zwei tage die aktive Kühlung zu nutzen und einzustellen. Eventuell könnt ihr mir bei meinen Fragen und Problemen helfen. Vorab ein paar Information und vielen Dank! Softwareversion: 49.500.2325.24- Fußbodenhei...

von
  • 0 Likes
  • 5 Antworten
  • 870 Ansichten

Vitocal 300 PV Anbindung

Moin zusammen, ich habe eine recht alte Vitocal 300. Da es ja immer interessant ist, hier die SN:3004303 601335104Ich würde gern nun entweder:a) bei PV Überschuß irgendwie das Laden des WW-Speichers (Vitocell 100) zu startenund ggf.b) bei PV Überschu...

von
  • 0 Likes
  • 2 Antworten
  • 457 Ansichten

Active Cooling, Heizkreispumpe läuft nicht

Nachdem ich erfolgreich meine Vitocal 300-A AWCI-AC zum Active-Cooling ermuntert habe,sind mir nun zwei Dinge aufgefallen:1. Wenn Kühlung aktiv, steht in der App Heizkreispumpe auf AUS2. Selbst anlaufen will das Active-Cooling auch nicht so richtig. ...

  • 0 Likes
  • 9 Antworten
  • 1335 Ansichten
Viessmann Systemlösung


Starte heute in die Zukunft des Heizens! Wie das geht? Mit unserem Konfigurator erstellst Du ganz einfach Deine maßgeschneiderte Viessmann Systemlösung.
Top-Lösungsautoren
Top empfohlene Mitglieder