abbrechen
Suchergebnisse werden angezeigt für 
Anzeigen  nur  | Stattdessen suchen nach 
Meintest du: 
Beantwortet! Gehe zur Lösung.

Verständnisfrage "Warmwasser" Kächel in der ViCare App

Guten Tag, 

 

Nach vier Monaten bin Ich noch in den Kennenlernenphase mit meiner Wärmepumpe. Ich habe eine Vitocal 250 mit Pufferspeicher Vitocell 120-E und Frischwasserstation + Vitotrans 353. Ich habe auch an jedem Heizkörper ein Viessman Thermostat. In der ViCare App kann ich für jedes Zimmer sowie für Warmwasser die Soll- und Ist-Temperatur einsehen. 

 

Seitdem geheizt wird habe ich festgestellt, dass morgens wenn die Soll-Temperatur sich in verschiedenen Zimmern auf einmal um ein paar Grad erhöht (z.B. von 18° auf 20° oder 22°, je nach Zimmer), die in der App angezeigte Warmwasser-Temperatur innerhalb von 10 Minuten von 10-12° sinkt. Das klingt erstmal logisch, weil das kalte Wasser aus den übernacht nicht-aktiven Heizkörpern wieder zum Pufferspeicher fliesst, als die Räume wieder beheizt werden. 
ABER: ich dachte dass der Pufferspeicher für jeweils Trinkwasser und Heizwasser zwei getrennenten Zonen hat, und dass was als "Warmwasser" in der App angezeigt und eingestellt wird das Trinkwasser sei. Also es dürfte nicht vom Heizen oder nicht Heizen beeinflusst werden?

 

Was verstehe ich falsch... oder verstehe ich das richtig und stimmt etwas mit der Anlage nicht?

1 AKZEPTIERTE LÖSUNG

Akzeptierte Lösungen

Die WW Zone des vitocell ist lediglich mit einem Lochblech vom Heizwasser getrennt. Ein gewisser Wärmeaustausch findet also trotzdem statt. Je niedriger die Temperatur im Heizwasserbereich desto höher die Übertragung.

Deine Frischwasserstation tauscht die Wärme über Wärmetauscher aus, somit muss die Temperatur in der WW Zone des Speicher mind. 5° höher sein (Viessmann spricht glaube ich von 10°) als die am Zapfhahn gewünschte Temperatur um die Übertragungsverluste auszugleichen.

 

Wenn der Temperatursensor für WW dann auch noch ganz oben angebracht ist schaltet die WW Bereitung auch ab wenn die Temperatur dort oben erreicht ist. Wenn du eine größere Speichermenge WW in der eingestellten Temperatur zur Verfügung haben möchtest solltest du prüfen ob der Sensor/Fühler nicht etwas weiter unten im WW Bereich montiert werden kann, die WW Temperatur somit weiter unten gemessen wird und der Bereich von oben bis zu diesem Punkt entsprechend aufgeheizt wird. 

 

Gruß Karl 

 

 

 

250A-10, Speicher WW 200 + HZ 400, Heizkörper, SW 10/2025

Lösung in ursprünglichem Beitrag anzeigen

14 ANTWORTEN 14

Die WW Zone des vitocell ist lediglich mit einem Lochblech vom Heizwasser getrennt. Ein gewisser Wärmeaustausch findet also trotzdem statt. Je niedriger die Temperatur im Heizwasserbereich desto höher die Übertragung.

Deine Frischwasserstation tauscht die Wärme über Wärmetauscher aus, somit muss die Temperatur in der WW Zone des Speicher mind. 5° höher sein (Viessmann spricht glaube ich von 10°) als die am Zapfhahn gewünschte Temperatur um die Übertragungsverluste auszugleichen.

 

Wenn der Temperatursensor für WW dann auch noch ganz oben angebracht ist schaltet die WW Bereitung auch ab wenn die Temperatur dort oben erreicht ist. Wenn du eine größere Speichermenge WW in der eingestellten Temperatur zur Verfügung haben möchtest solltest du prüfen ob der Sensor/Fühler nicht etwas weiter unten im WW Bereich montiert werden kann, die WW Temperatur somit weiter unten gemessen wird und der Bereich von oben bis zu diesem Punkt entsprechend aufgeheizt wird. 

 

Gruß Karl 

 

 

 

250A-10, Speicher WW 200 + HZ 400, Heizkörper, SW 10/2025

Ok, danke für die Antwort. Ich muss überprüfen wo de Fühler ist, vermutlich doch oben.

Aber du sagst "die WW Temperatur somit weiter unten gemessen wird und der Bereich von oben bis zu diesem Punkt entsprechend aufgeheizt wird."
Hat der untere Bereich keinen eigenen EIngang und wird nur durch den oberen Bereich aufgeheizt? Ich hätte eher gedacht, wenn der Fühler weiter unten ist, müsste die WW Aufbereitung weniger oft / weniger lang laufen.

Schau dir das Datenblatt zu deinem Speicher an. Wenn's dir nicht vorliegt gibt's auch im Netz.

Du hast zwei Bereiche getrennt durch das Lochblech.

Beide Bereiche werden getrennt versorgt, aber ein Austausch wird nicht vollständig verhindert.

 

Gemeint ist den Fühler noch im Bereich WW aber hier an tieferer Stelle anbringen. Es macht eben einen Unterschied ob er ganz oben im WW Bereich oder 25 cm weiter unten aber immer noch im WW Bereich misst.

 

Für dein Heizwasser sind extra Fühler die den Pufferbereich Eintritt und oben messen.

 

Gruß Karl 

250A-10, Speicher WW 200 + HZ 400, Heizkörper, SW 10/2025

Ich habe gestern nachmittag alle ca. 10 Minuten allen Daten aus der App protokolliert. Die Protokollierung fing am Ende einer WW-Aufbereitungsphase an. 

In der Zeit wurde nicht geduscht, ev.t ein paar Mal die Hände gewaschen. Es wurde auch nicht gelüftet. Aufgehalten wurde am meistens in den Wohn- und Esszimmern (zueinander angrenzend, keine Tür). In der ersten Stunde wurde auch in der Küche leicht gekocht (Mikrowelle + Wasserkocher).

Die Daten sind angehängt.

 

Außer in der Küche gibt es über den Zeitraum kaum Veränderung in den Raumtemperaturen. Nur die WW-Temperatur senkt rapide von 51° auf ca. 44° (innerhalb ca. 40 Minuten), wonach die WW-Aufbereitung wieder anfängt (Hysterese: 6.5°).  Es dauert ca. 3 Stunden, bis das WW wieder die Solltemperatur hat.

Wenn ich in der App im Analyse-Bereich zu "Thermische Energie" gehe erfahre ich dass gestern, 86% der thermischen Energie zu WW-Aufbereitung ging, nur 14% für das Heizen. An anderen Tagen war es auch ähnlich, vorgestern sogar 94% / 6%. (Natürlich wenn nicht oder nur wenig geheizt wird soll dieses Verhältnis sich 100 / 0 annähern, aber gestern und an den beobachteten Tagen wurde durchaus geheizt und nie mehr als zweimal geduscht.)

Ich verstehe schon, dass aufgrund des Lochbleches usw.  das Warmwasser zum Teil das Haus mitheizt, aber ist das beschriebene Verhalten normal (dass die WW-Aufbereitung nach 30-40 Minuten wieder von vorne anfangen muss)?

Übrigens, als ich über Weihnahchten nicht zu Hause war hatte ich den Urlaubsmodus aktiviert. Obwohl keine aktive WW-Aufbereitung stattgefunden hat habe ich einige Male die gemessene WW-Temperatur auf 43-44° gesehen. Das klingt für mich nach sehr viel verschwendete Energie.

Hallo @julienp91 

 

Nachdem ich jetzt keinen Kombispeicher mit Frischwasserstation sondern zwei getrennte Speicher habe kann ich zu dem speziellen Verhalten/Verlust wenig sagen.

 

Aus einem anderen Beitrag hat sich ergeben dass bei diesem Nutzer anstatt des bestellten Speicher der nächstkleinere tatsächlich verbaut wurde. Der hat aber keine thermische Trennung und ist auch um einiges günstiger. Vielleicht solltest du hier mal ansetzen und kontrollieren.

 

Gruß Karl 

250A-10, Speicher WW 200 + HZ 400, Heizkörper, SW 10/2025

Danke für den Hinweis, ich werde das mit dem HB ansprechen.

Ich habe ebenfalls eine Vitocal 250-A mit Vitocell 120-E 600l, Vitotrans 353 und noch zwei WMZ. Ich protokolliere alle 10 Sekunden die Daten der Vitocal, der Vitotrans und der WMZ in einer Datenbank und werte diese auch aus. Meine 250-A ist eine A10, welche ist deine? 

 

Ich werde mir morgen früh mal deine Protokolldaten anschauen. Auf den ersten Blick ist das beschriebene Verhalten deiner Anlage nicht ok. Was du schon einmal tun kannst: 1. Fotografiere das Typenschild des Vitocell und vergewissere dich, dass es kein 100-E ist, der hat nämlich gar kein Lochblech. 2. Stell die Zirkulation an der Vitotrans aus. Die Vitotrans lässt sich NICHT über die App bedienen.

 

LG, Sebastian

Hallo,

 

auch ich habe einen Kombispeicher 120-E mit FriWa, der Temperaturabfall ist bei mir auf jeden Fall geringer, s. Angehängter Temperaturverlauf vom 31.12. Die Zirkulation habe ich an der FriWa nur auf Anforderung gestellt, prüf bitte bei dir, wie die eingestellt ist. Ein falscher Speicher ist auch ein heißer Kandidat. 

Grüße

Thomas

| Vitocal 200-S AWB-E-AC 201.D13 mit Vitocell 120-E |
WP20251231.png

@julienp91  schrieb: Ich habe gestern nachmittag alle ca. 10 Minuten allen Daten aus der App protokolliert. Die Protokollierung fing am Ende einer WW-Aufbereitungsphase an. Nur die WW-Temperatur senkt rapide von 51° auf ca. 44° (innerhalb ca. 40 Minuten), wonach die WW-Aufbereitung wieder anfängt (Hysterese: 6.5°).  Es dauert ca. 3 Stunden, bis das WW wieder die Solltemperatur hat.

Wenn ich in der App im Analyse-Bereich zu "Thermische Energie" gehe erfahre ich dass gestern, 86% der thermischen Energie zu WW-Aufbereitung ging, nur 14% für das Heizen. An anderen Tagen war es auch ähnlich, vorgestern sogar 94% / 6%. Ich verstehe schon, dass aufgrund des Lochbleches usw.  das Warmwasser zum Teil das Haus mitheizt, aber ist das beschriebene Verhalten normal (dass die WW-Aufbereitung nach 30-40 Minuten wieder von vorne anfangen muss)?


Nein, das ist nicht normal.  Ich fahre meine WW-Zone mit 57°C und die Heizzone zur Zeit mit so 35°C, und meine WW-Zone verliert 6K pro Tag.

 

Ich hatte die thermischen Energieflüsse meiner Anlage mal für Dezember 2024 ausgewertet. Bei mir wurden in dem Monat 2720 kWh in den 120-E geschoben, davon 280 kWh in die obere WW-Zone und 2440 in die untere Heizwasserzone. Davon hat die Vitotrans 110 kWh in Warmwasser und Zirkulation geschoben, und die Divicon 2500 kWh in den Heizkreis. Es sind also 110 kWh in den Heizkeller verloren gegangen, und wenn davon 70 kWh aus der wärmeren und größeren oberen Zone gekommen sind, und 40 kWh aus der unteren Zone, dann müssen 100 kWh von oben nach unten abgeflossen sein.

 

Die Frage ist, wo geht bei dir die in die WW-Zone gelieferte thermische Energie so schnell hin? Wenn 350l von 51°C auf 44°C sinken, dann sind diese 2450 Kelvinliter nach der Wasserkocherformel 2.84 kWh, und wenn die in 40 Minuten "verschwinden" dann ist das eine Leistung von 4.26kW! So viel Leistung kann eigentlich keine popelige Zirkulationsleitung ins Haus bringen, die muss in die Heizkörper fließen! Leider fehlen in deinem Protokoll die Temperaturen der unteren Zone des Vitocell. Wenn meine Vermutung stimmt, dann sollte sich diese Zone weit über die Soll-Vorlauftemperatur hinaus aufheizen.

 

Es gibt für so ein Phänomen mehrere möglich Ursachen. Wenn du tatsächlich einen 120-E und nicht etwa einen 100-E hast (die zwei Typen haben unterschiedliche Anschlußhöhen und lassen sich auf einem Foto, bei dem die rückwärtigen Anschlüsse zu sehen sind, unterscheiden, wenn das Typenschild fehlen sollte), dann wäre der nächste Schritt die Kontrolle des Rücklaufwegeventils zwischen Vitocell und IDU. Es sorgt dafür, dass das Rücklaufwasser auch aus der gerade mit Vorlauf belieferten Zone entnommen wird. Dieses Ventil wird entweder durch einen Strömungswächter im WW-Zonen-Vorlauf angesteuert, oder (seit einer Softwareverbesserung von 2025) direkt von der Vitocal. Manchmal dreht der Motor diese Ventils falsch herum, dann wirkt sich das so aus wie bei dir.

 

20260105_124803.jpg

 

LG, Sebastian

Ein Typenschild am Pufferspeicher konnte ich leider nicht finden bzw. es ist nur die Dämmung sichtbar.

Jedenfalls ist die mitgelieferte Anleitung für Vitocell 120-E.

Update: Ich habe das Typenschild gefunden und es ist tatsächlich ein 120-E.

So sie die Rückseite aus:

 

IMG_20251203_203309.jpgIMG_20251203_203721.jpg

Ah, und die WP ist eine 250A A10, zumindest laut Bestellung, Rechnung und Typenschild. In der App Steht jedoch A16.

Hallo Julien,

 

das von Viessmann empfohlene Hydraulikschema für deine Anlagenkonfiguration ist wie für meine https://schematics.viessmann-climatesolutions.com/?query=4805622.bzw. Darin findest du das Wegeventil W19 im Rücklauf vom Vitocell zur IDU.

 

Ich kann auf den Fotos die Rohrleitungen zwischen Puffer und IDU und zwischen Puffer und Divicon nicht nachvollziehen, bitte tue du das einmal:

Wangnick_2-1767715481519.png

 

 

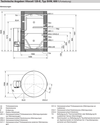
Ganz oben knapp unter dem Deckel ist HV1-1 für das Überdruckventil und/oder den Entlüfter, das ist OK so. Dann kommt erst einmal nichts, und dann kommen von oben nach unter a) HV1-2 der WW-Zonenvorlauf von der IDU, b) HR1-1 der WW-Zonenrücklauf zum Wegeventil W19 und dann zum gemeinsamen Rücklauf IDU, c) mittig HV2-1 der Heizzonenvorlauf von der IDU und auf derselben Höhe abgewinkelt HV2-2 der Heizkreisvorlauf zur Divicon, d) HR2-1 der Heizzonenrücklauf zum Wegeventil W19 (und dann zur IDU) und e) HR2-2 der Heizkreisrücklauf von der Divicon.

 

Wenn die Verrohrung stimmt, dann muss das Wegeventil geprüft werden. Wird es angesteuert? Ist es richtig herum verbaut? Und dreht der Motor richtig herum, wird also im Heizladebetrieb der Heizzonenrücklauf und im WW-Ladebetrieb der WW-Zonenrücklauf auf den IDU-Heizkreis/Puffer-Rücklaufeingang aufgeschaltet?

 

Bei meiner Anlage musste nach der installation auch der Drehsinn dieses Mischermotors durch Umdrehen eines Steckers im Innneren des Gehäuses noch gewechselt werden.

 

LG, Sebastian

In der App wird die Bezeichnung der Inneneinheit angegeben die bei diversen Geräten zum Einsatz kommt.

 

Der Aufkleber auf der Rückseite der Außeneinheit gibt an welche Leistung deine WP hat.

 

Gruß Karl 

250A-10, Speicher WW 200 + HZ 400, Heizkörper, SW 10/2025
Top-Lösungsautoren