abbrechen
Suchergebnisse werden angezeigt für 
Anzeigen  nur  | Stattdessen suchen nach 
Meintest du: 
Beantwortet! Gehe zur Lösung.

Dimensionen der Wandkonsole ZK06016 für WP 552-A

Ich muss eine eigene Spezialkonsole anfertigen lassen (Montage in einer Naturstein Felsenwand).
Kann mir jemand die Dimensionen der Viessmann Wandkonsole ZK0616 sagen?
Ich muss nur die Innen-Breite und Innen-Höhe der beiden Trägerholme wissen, damit ich entsprechende Stahlträger beschaffen kann.

Und die Dimensionierung der 4 Pumpen-Befestigungs-Schrauben (M6, M8, M10?)
Optimal wäre natürlich eine technische Zeichnung mit Massen (welche mir Viessmann Schweiz anscheinend nicht beschaffen kann).
Vielen Dank für jede Hilfe.

Konsole Viessmann.jpg
1 AKZEPTIERTE LÖSUNG

Akzeptierte Lösungen

 

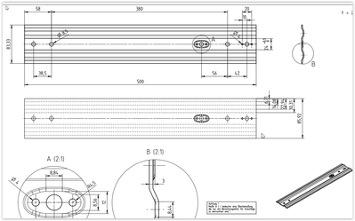
Das ist die korrekte Konstruktionszeichnung für die Trägerplatte und damit den Lochabstand der Gummis. Nur falls jemand anders auch mal so was zusammenschweissen muss.

Exflueger_1-1663236207494.png

 

Lösung in ursprünglichem Beitrag anzeigen

6 ANTWORTEN 6

Hallo Exflueger,

 

die Abmaße des unteren Profils sollten 100mm breit, 50mm hoch und das Material 5mm stark sein. Die Muttern bzw. Schrauben sind M8.

 

Viele Grüße
Flo

Super, vielen dank!

was ich noch vergessen habe ist mach dem Abstand der beiden Schwingummis zu fragen. Ich glaube es ist 380mm und die Löcher sind 20.7mm

476mm und 20,4mm.

 

Viele Grüße
Flo

Leider eine falsche Antwort. Daher Feedback:

Es sind tatsächlich 380mm und die Löcher für die AMC Schwinggummis sind 20.4 (+/- 0.5)mm. Die Anlage ist auf dem Spezialstahlträger installiert und läuft, ich kann mich also nicht mehr irren.

Hallo Exflueger,

 

das waren die Daten, welche ich aus den Konstruktionsplänen dazu rausgesucht hatte. Wenn dann ist sie ja nur bei einem Maß falsch gewesen und nicht komplett. 😉 Es freut mich aber, dass deine Anlage läuft. 

 

Viele Grüße
Flo

 

Das ist die korrekte Konstruktionszeichnung für die Trägerplatte und damit den Lochabstand der Gummis. Nur falls jemand anders auch mal so was zusammenschweissen muss.

Exflueger_1-1663236207494.png

 

Top-Lösungsautoren