abbrechen
Suchergebnisse werden angezeigt für 
Anzeigen  nur  | Stattdessen suchen nach 
Meintest du: 

Vitopend 200-W Fehler F5

Hallo Zusammen,

 

in der Wohnung meiner Eltern ist oben genannte Therme verbaut. Wir haben seit 2019 Probleme, da diese immer wieder ausgeht und Fehler F5 zeigt. Es waren 4 Firmen mehrfach vor Ort und es wurden folgende Teile getauscht:

 

  1. Lippendichtung System D80
  2. Lippendichtung System D60
  3. Wasserschalter kurz
  4. Regelung VBC 120-A20.151
  5. Codierstecker 23A7:0202
  6. Vitotronic 100 HC1B
  7. VIESSMANN Vitotrol 100 UTA Raumthermostat

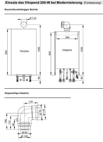
Leider hat nichts zu einer langfristigen Lösung geführt und wir haben das Problem versucht zu analysieren. Laut Anleitung sollte das Abgasrohr einen Durchmesser von 70 und Frischluft 110:

 

Tschaegged_0-1745497467788.png

 

Das ist der IST-Zustand:

Tschaegged_4-1745498686068.png

 

Somit ist die Zuluftmenge viel geringer, als in der Anleitung.

 

 

Dazu kommt ein geriffeltes Rohr anstatt einem glatten, was strömungstechnisch eine zusätzliche Behinderung darstellt:

Tschaegged_2-1745498325075.jpeg

 

Jetzt dachte ich, wir ersetzen das Rohr durch ein passendes (70/110). Leider finde ich NIRGENDS ein Rohr, was zur Anleitung passt.

 

Kann mir hier jemand weiterhelfen, ob wir auf dem Holzweg sind?

 

Danke!

 

 

0 ANTWORTEN 0
Top-Lösungsautoren