abbrechen
Suchergebnisse werden angezeigt für 
Anzeigen  nur  | Stattdessen suchen nach 
Meintest du: 
Beantwortet! Gehe zur Lösung.

Vitovent 300-W L und R Ausführung

Guten Morgen,

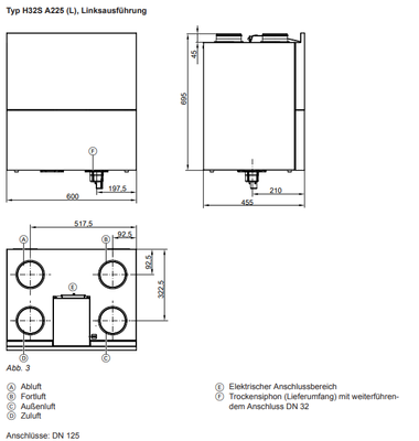
Bei uns wurde eine Vitovent 300-W H32S C325 (L) verbaut. Nachdem ich die Installationsanleitung durchgesehen habe, müsste für die Linksausführung die Zuluft und Abluft demnach an den linken Ausgängen angeschlossen werden. Bei uns wurden diese allerdings baubedingt an die beiden rechten Anschlüsse montiert. Macht dies einen Unterschied, bzw. worin besteht genau der Unterschied zwischen den beiden Ausführungen?

Kann man dies falsch herum, wie es nun bei uns ist, dennoch betreiben und muss man dann ggf. etwas bei der Orientierung des Wärmetauschers beachten (diesen zB anderesherum hineinstellen)?

 

Lieben Dank im voraus!

1 AKZEPTIERTE LÖSUNG

Akzeptierte Lösungen

Hallo LukasC,

 

bei der Linksausführung muss der Anschluss folgendermaßen erfolgen. Ein anderer Anschluss ist nicht möglich. 

 

Flo_Schneider_0-1674047196062.png

 

 

Viele Grüße
Flo

Lösung in ursprünglichem Beitrag anzeigen

1 ANTWORT 1

Hallo LukasC,

 

bei der Linksausführung muss der Anschluss folgendermaßen erfolgen. Ein anderer Anschluss ist nicht möglich. 

 

Flo_Schneider_0-1674047196062.png

 

 

Viele Grüße
Flo